研讨会

您的位置:首页 > 资讯 > > 内容

热点追踪 | “变形,出发!” 看美国德州Mill Creek排水隧道“变径”TBM如何完成直径切换

  来源:隧道网  发布:2021/7/27  浏览:+ 放大字体 | - 减小字体

摘 要:美国德州Mill Creek排水隧道工程中直径11.6m的罗宾斯“变径”硬岩TBM始发已经一年有余,这台全美施工中最大直径的硬岩TBM需要中途在掘进的隧道内将刀盘直径变换为9.9m,单机完成两种不同直径的隧道掘进。

小编语:美国德州Mill Creek排水隧道工程中直径11.6m的罗宾斯“变径”硬岩TBM始发已经一年有余,这台全美施工中最大直径的硬岩TBM需要中途在掘进的隧道内将刀盘直径变换为9.9m,单机完成两种不同直径的隧道掘进。

截止今年夏季,工程的施工进展如何?TBM如何进行直径变换,又遭遇了哪些挑战?小编带您一探究竟!

快速回顾

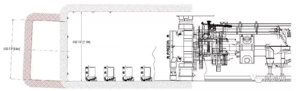
美国德州Mill Creek排水隧道全长8km,上游5.2km段(峰值流速424 m³/s)为圆形断面,而下游2.8km(峰值流速565m³/s)则为马蹄形断面。

马蹄形断面原计划采用TBM开挖+凿岩机扩径方案,但该方案成本高昂、工期冗长,还需要两套模板分别浇筑圆形与马蹄形断面的衬砌。

有鉴于此,施工团队创新采用一台"变径”TBM,在掘进过程中将刀盘直径从11.6m转换至9.9m,单机完成整条隧道掘进。

相关链接: “变径”TBM迎接挑战!

始发与掘进

TBM名为“Big Tex”,正应了德州当地的俗语:“德克萨斯什么都大”(Everything is bigger in Texas),成为目前美国运作中最大直径的硬岩TBM。

TBM始发

TBM于2019年12月下线,工程中直径14m,深37m的始发井也开挖完毕。在TBM进行组装测试的同时,直径12m、长76m的始发隧道完成开挖,随后TBM使用650t起重机分块吊运至井内,进行刀盘支架、前后主轴承和刀盘的安装;之后,利用始发隧道内的顶伸系统使机头向前滑动,继续安装TBM剩余的车架等部件。

最终,TBM于 2020 年 4 月 24 日以11.6m的刀盘直径顺利始发,率先掘进下游2.8km隧道。

TBM掘进

截止今年6月,TBM已在31m至46m深度下的奥斯汀白垩层(UCS岩体强度12-30MPa)中掘进了超过2800m,最高日掘进距离43m。

由于隧道沿线地层中包含有害气体,因此TBM掘进过程中进行了多次超前钻探;掘进后的隧道每1.5m打设8根长4.2m的硬岩螺栓,按需添加钢丝网与槽钢加固,后续施作厚度380mm的现浇混凝土衬砌。

TBM刀具磨损情况好于预期,但该地层沾水后会变得极富粘性,因此掘进中需要保持地层的干燥,因而带来了严重的扬尘问题,施工方只能在掘进中不断调整通风系统以控制扬尘。

变径过程

今年1月,TBM完成了下游外径11.6m,长2.8km的下游隧道,开始进行直径变换。这样在隧道而非竖井内进行TBM直径变换的工程尚属世界首例。

步骤1:进入刀盘

隧道沿线设有五个跌水井与侧向隧道,变径区位于隧道侧向隧道A的位置:这是一条使用挖机建成的直径6m、长90m的马蹄形隧道,与深52m,直径6m的跌水井A相连。

施工方在侧向隧道A附近开挖了一个中继间,清出了一片长21m的施工区,安装顶部支护后,将TBM倒退一段距离来到中继间的开口位置,随后在侧向隧道内开始拆卸刀盘部件。


实际施工时,侧向隧道A进行了少量超挖,确保施工人员来到刀盘前。为了应对转换施工区内的风化地层,施工方对地层支护进行了方案变更,在隧道顶部安装了一个顶棚,对隧道结构进行了加固。TBM后退了1.5-1.8m后,工人顺利来到刀盘位置。

步骤2:刀盘拆卸

整个刀盘由中央的方形块、上下左右四个边缘块以及连接边缘块的四个连接块组成。拆卸时,刀盘上的边缘块与连接块分别拆下,从侧向隧道内运至跌水井后吊出,其中边缘块在制造车间内割除多余部分后再次运至井内,与中央方形块重新拼合并固定,形成9.9m直径刀盘。

刀盘部件拆卸后,盾壳的拆卸也同步进行,由于隧道内空间有限,只能切割成小块后运出。

步骤3:位置调整

由于小直径隧道需要与大直径隧道保持同圆心,因此刀盘部件在车间进行改制的同时,施工人员使用千斤顶将TBM机头与车架抬高了75cm,以匹配新隧道的标高,并安装了小直径的盾壳。

步骤4:重新掘进

完成上述步骤并重新装好新的刀盘后,TBM缓慢地向前推进了1.2m至1.5m,并将之前安装的施工支护顶棚拆除;

之后又进行6m至9m掘进,施工人员对TBM的后部支撑进行了调整,车架在进入小直径隧道后拆除了原先用于抬高的结构。在小直径隧道内掘进90m至120m后将安装新的皮带输送系统。

结语:最终,整个变径过程耗时4个月。目前,TBM已经开始掘进剩余5180m上游隧道,地质与之前的下游隧道类似,预计将于2024年完工。

隧道网编辑郭德元整理自网络

编辑:徐蓉蓉

隧道网版权及免责声明:

凡本网注明“来源:隧道网”的所有作品,版权均属于隧道网,未经本网授权,不得转载、摘编或以其它方式使用上述作品。已经本网授权使用作品的,须在授权范围内使用,并注明“来源:隧道网”。违反上述声明者,本网将保留追究其相关法律责任的权利。凡本网来源注明为非隧道网的作品,均转载自其它媒体,转载目的在于传递更多信息,该文章仅代表作者观点,并不代表本网赞同其观点或对其真实性负责,请读者自行核实相关内容,仅作参考。如因作品内容、版权和其它问题请与本网联系。

关键词:

相关文章

网友评论

发表评论

发表评论 (回复限1000字以内!)

加载更多...


隧道网手机版
隧道网微信公众号
╳ 关闭