书馆banner

您的位置:首页 > 书馆 > 技术资料 > 相关课题

新海燕桥工程竖转钢箱梁开启桥设计

作者:郭继业,杜建成,高康平  发布:2022/2/23  浏览:
单位:珠海市规划设计研究院

现介绍新海燕桥工程竖转钢箱梁开启桥的结构设计与静力分析。其主要内容有:上部结构、下部结构、启闭系统、锁定系统、限位装置、钢箱梁静力分析等,可供同类工程参考。

0 引言

新海燕桥工程位于珠海市香洲区情侣中路东侧,起点位于情侣路与东风路交叉口,终点交野狸岛规划路,设计长度707.707 m,其中桥梁总长583.4 m,跨径组合为:20 m 空心板+3×(3×30)m小箱梁+4×30 m小箱梁+33.4 m竖向开启钢箱梁+4×30 m 小箱梁+20 m 空心板。为了保证清淤船只通行,设置了一孔跨度33.4 m 竖向开启钢箱梁。全桥等宽23 m,其中开启桥孔分为左右两幅,其余桥孔均为整幅。开启桥孔不设横坡,只设3‰纵坡与两侧非开启桥孔顺接[1-5]

1 设计要点

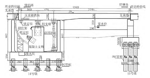
开启桥常见型式有竖向转动、垂直提升、水平转动和水平移动等,经过多方案比选及专家论证,最终采用竖向转动方案。开启方式为单臂仰开式,需要通航时,钢箱梁绕铰支座向上开启57°,满足水面以上16 m 净高,20 m 净宽的通航要求,通航完毕,关闭钢箱梁,通行车辆和行人。

开启桥孔主要由钢箱梁、铰支座、启闭油缸、锁定装置、液压泵站、固定支座、压重铸铁块、伸缩缝、限位架、电气控制设备、设备预埋件等组成。

铰支座设在14 号墩转动腔体内的混凝土支墩上,距钢箱梁尾端580 cm,采用高强螺栓与钢箱梁连接。

单幅桥由2×5 000 kN 双顶点液压启闭机操作,顶点距铰支座470 cm。油缸缸体、活塞杆均通过球面自润滑轴承与铰支座连接,缸体尾端铰支座通过埋件与混凝土基础连接,活塞杆端铰支座通过高强螺栓与钢箱梁连接。油缸活塞杆伸出时使桥体开启,退回时使桥体关闭。顶升按位移控制,保证两幅桥同步开启和关闭。

钢箱梁尾部设锁定铰,在转动腔体支墩上设锁定装置,钢箱梁开启后由锁定装置锁定。

单幅开启桥的启闭机油缸和锁定装置油缸由一套液压泵站操作,液压泵站与油缸之间通过管路连接,在相对运动部位设高压胶管。液压泵站及其电气控制设备布置在14 号墩转动腔体机房内。

15 号墩顶处设固定支座和缓冲装置。固定支座作为桥体另一端在关闭状态下的支承,缓冲装置用于减缓桥体关闭时对固定支座的冲击。

开启桥孔两端与相邻桥孔之间分别通过一组活动伸缩缝装置衔接,以适应桥体的温度变形和制造误差。具体见图1~ 图4 所示。

图1 开启桥关闭状态示意图(单位:cm)

图2 开启桥开启状态示意图(单位:cm)

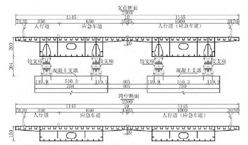
图3 开启桥钢箱梁横断面图(单位:cm)

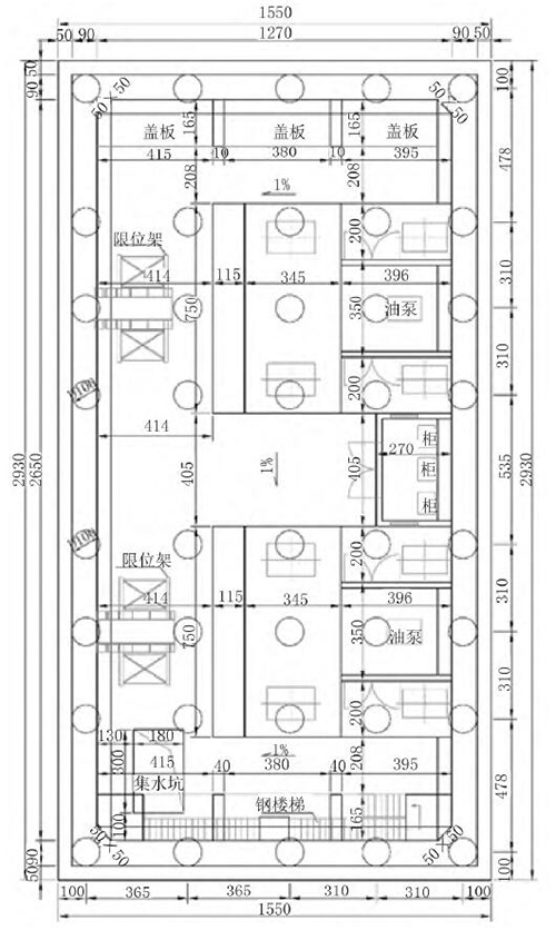
图4 开启桥转动腔体平面图(单位:cm)

1.1 主要技术标准

(1)道路等级:城市支路,双向4 车道;

(2)设计速度:30 km/h;

(3)荷载等级:汽车荷载为城-A 级,人群荷载为3.5 kPa;

(4)桥梁结构设计基准期:100 a,设计使用年限:100 a;

(5)桥梁设计安全等级:一级;

(6)环境类别:按Ⅲ类环境进行混凝土结构的耐久性设计;

(7)桥梁设计最高潮水位:1/100;

(8)桥梁常水位:0.55 m,100 a 一遇潮水位:3.07 m;

(9)航道等级:无规划航道,考虑后期清淤,设置净宽20 m 的开启桥孔;

(10)抗震设防标准:按7 度设防,地震动加速度峰值0.1g。

1.2 上部结构

开启桥跨径为33.4 m,桥梁全宽23 m,分为左右两幅桥,单幅宽11.45 m,两幅之间设10 cm 缝隙。上部结构采用单箱单室变高钢箱梁,梁高150~200 cm,顶板厚16~22 mm,腹板厚16~18 mm,底板厚12~22 mm。在钢箱梁尾部箱室内布置铸铁块压重,以平衡桥体部分重量,减小启闭力。

1.3 下部结构

为保证钢箱梁能顺利竖向转动及布置机械设备,在14 号桥墩设转动腔体,腔体外轮廓尺寸为1450 cm×2830 cm×952 cm,侧墙厚度均为90 cm。底部基础为1550cm×2930cm×250 cm 整体承台,承台下设D100 cmPHC 管桩,顺桥向5 排,间距为(2×365+2×310)cm,横桥向8 排,间距为(478+2×310+535+2×310+478)cm,总计40 根。

在两幅箱梁转动铰支座底部分别设460 cm×750 cm×749.4cm 混凝土支墩,在支墩与大桩号侧墙间设396 cm×350 cm×440 cm 液压泵站机房,在两个支墩之间设置270 cm×405 cm×440 cm 的电气柜机房,三个机房底部均垫高50 cm。为防止腔体内积水,设置一个180 cm×300 cm×100 cm集水坑,在集水坑内设潜水泵,将积水抽到腔体外面。

14 号墩除桩基外均采用P8 防渗混凝土,并且除桩基外结构外表面均采用硅烷浸渍进行防护。14 号桥墩采用双壁钢围堰施工。

15 号墩采用钢筋混凝土大挑臂盖梁接方形双柱墩配承台和PHC 管桩基础。盖梁横桥向长2 210 cm,顺桥向宽180 cm,高160 cm,盖梁不设横坡,靠钢箱梁侧设置加高块,以协调钢箱梁与小箱梁梁底之间的高差。墩柱间距1 070 cm,断面尺寸为180 cm×180 cm。承台尺寸为1 790 cm×500 cm×200 cm,下部接10 根D100 cmPHC 管桩。为防止船撞,承台顶面埋在海床线以下50 cm。

1.4 启闭系统

该工程设2 幅开启桥,分别由2 套液压设备控制。液压启闭机包括4 套主油缸、4 套锁定油缸、2 套泵站系统和2 套电气控制系统。

(1)启闭机采用1 站1 孔控制方式,主油缸与锁定缸共用一套液压泵站。

(2)电气控制具有远程控制、现场控制、现场检修手动控制三种方式,三种方式之间相互联锁。

(3)液压泵站的油泵电动机组为两台,互为备用。

(4)启闭机具备下滑回升功能:当油液泄漏或气温变化引起活塞杆下滑150 mm 时,工作泵组自动投入工作,使活塞杆回升复位;如果活塞杆未能复位而继续下沉至200 mm 时,备用泵组自动投入工作,将活塞杆恢复至原位,同时在远方监控室和现场均发出声光报警信号。

(5)启闭机内置行程检测装置,具有双缸同步纠偏功能,采用比例纠偏,同步偏差≤4 mm。

(6)缸体材料采用45 号钢。活塞杆材料采用45 号钢,并正火处理,活塞杆表面喷涂金属氧化陶瓷层TCT1.0 防腐。油缸主要技术参数见表1 所列。

表1 油缸主要技术参数表

1.5 锁定系统

开启桥液压锁定装置设在桥体尾部,由液压泵站操作,液压泵站及其电气控制设备布置在桥体下方的机房内。在开启状态由锁定装置锁定梁体,防止液压启闭机漏油导致梁体突然掉落造成事故。

锁定装置由上铰座、下铰座、销轴、油缸、机架及预埋件等组成。上铰座采用高强螺栓安装在钢箱梁尾端,下铰座、机架采用地脚螺栓和预埋件安装在混凝土支墩上,油缸通过管路系统与液压泵站连接。需要锁定时,销轴由油缸驱动穿过上铰座轴孔,上铰座轴孔直径大于销轴直径,正常状态下轴孔不与销轴接触。

1.6 栏杆设计

钢箱梁尾端与小箱梁衔接处栏杆立柱采用倾斜设计(见图5),以避免开启时栏杆碰到小箱梁。

图5 栏杆立面图

1.7 限位装置

在14 号墩转动腔体内设导向限位架(见图6),防止启闭过程中钢箱梁横向摆动。

图6 限位装置构造图(单位:cm)

1.8 钢箱梁桥面涂装

为减小二期恒载,降低启闭力,除桥梁栏杆外,不设置沥青混凝土铺装及其它构造物,为此对钢箱梁顶面涂装进行了特殊设计,详见表2 所列。

表2 涂装方案一览表

E5 环氧底漆与除锈等级Sa2.5 钢板表面的附着力为15 MPa,抗滑系数见表3 所列。涂装的抗剥离强度、抗滑系数均满足使用要求。

表3 涂层抗滑系数表

1.9 桥梁运行辅助系统

为保证开启和闭合过程的安全,设置以下三个辅助系统:

(1)开启远程控制系统:在桥头设置开启远程控制室,将桥梁远程控制系统集成于控制室内。同时,在桥面设置监控系统,将桥梁转动实时视频传送到监控室内。

(2)机动车及行人交通控制系统:由于桥梁开启时不能行车,且不允许行人靠近开启桥孔,因此,在桥上设置闸机,控制机动车通行,并设置红外监控系统监控是否有行人靠近开启桥孔。

(3)视频监控及广播系统:在开启桥孔附近设置视频监控探头,监控是否有行人在危险区域内;在桥上设广播系统,通知行人在开启前撤离到安全区域,并在开启过程中警告行人切勿靠近。

2 钢箱梁静力分析

2.1 计算模型简介

采用Midas Civil 2019 软件进行结构分析,将钢箱梁划分为16 744 个薄板单元。计算采用参数如下:

(1) 钢材重力密度:78.5 kN/m3,焊缝重量按1.5%考虑。

(2)梯度温度:顶板升温5°,顶板降温5°。

(3)均匀温度:整体升温30°,整体降温30°。

(4)汽车冲击系数:0.45。

(5)强迫位移:油缸不同步4 mm。

(6)风力:风压取1kPa。

(7)荷载组合如下:

承载能力极限状态基本组合:1.1×[1.2×结构重力+1.4×汽车重量+1.05×人群重量+1.05×均匀温度应力+1.05×梯度温度应力+0.825 风力];

作用标准值组合:结构重力+ 汽车+ 人群+均匀温度+ 梯度温度+ 风力。

2.2 挠度验算

在活载作用下,钢箱梁挠度为2.76 cm<L/500=2715/500=5.43(cm),满足要求。

2.3 应力验算

在通车运营、开启0°、开启57°、锁定这四种工况下,钢箱梁承载能力极限状态基本组合应力见表4 所列,Q345C 钢材抗拉、抗压和抗弯强度设计值为270 MPa,抗剪强度设计值为155 MPa。从表4 可以看出,钢箱梁强度满足要求。

表4 钢箱梁应力表MPa

2.4 启闭力验算

单个液压启闭机额定启闭力、作用标准值组合下单个顶升点支反力见表5 所列。从表5 可以看出,启闭力满足要求。

表5 启闭力验算表kN

3 结语

本文介绍了新海燕桥工程竖转钢箱梁开启桥结构设计和静力分析,可供同类工程参考。

摘自:城市道桥与防洪

隧道网版权及免责声明:

凡本网注明“来源:隧道网”的所有作品,版权均属于隧道网,未经本网授权,不得转载、摘编或以其它方式使用上述作品。已经本网授权使用作品的,须在授权范围内使用,并注明“来源:隧道网”。违反上述声明者,本网将保留追究其相关法律责任的权利。凡本网来源注明为非隧道网的作品,均转载自其它媒体,转载目的在于传递更多信息,该文章仅代表作者观点,并不代表本网赞同其观点或对其真实性负责,请读者自行核实相关内容,仅作参考。如因作品内容、版权和其它问题请与本网联系。

关键词

相关文章

网友评论

发表评论

发表评论 (回复限1000字以内!)

加载更多...


隧道网手机版
隧道网微信公众号
╳ 关闭